Charakterystyka :
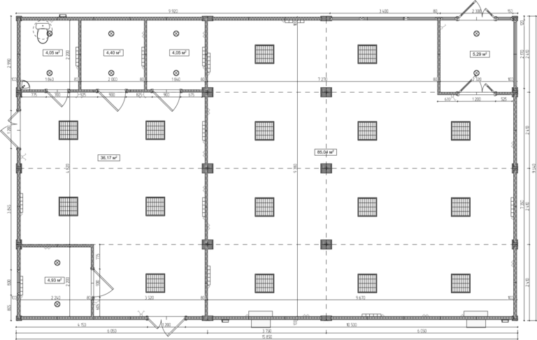
- Wymiary gabarytowe budynku (DxSxW): 15,85 x 9,64 x 4,3 m;
- Wysokość sufitu: 3,0 m;
Budynek składa się z:
- 8 modułów o wymiarach 6,05 x 2,41 x 3,3 m;
- 4 moduły o wymiarach 3,75 x 2,41 x 3,3 m;
Parterowy;
- Całkowita powierzchnia zabudowy: 152,79 m2;
Rama modułów składana, na połączeniu śrubowym:
- Obwód ramy podstawy wykonany jest wykonany z zimnogiętej balchy stalowej. Wysokość profilu 150mm, grubość metalu t=3mm; kłody wykonane są z giętego metalowego kanału 100x40mm, grubość metalu t=2mm;
- Obwód ramy stropodachu jest wykonany jest z zimnogiętej balchy stalowej. Wysokość profilu 185mm, grubość metalu t=3mm; kłody pokrycia są wykonywane z giętego ceownika metalowego 90x40mm, grubość metalu t=2mm;
- Kąty nośne lozysk łożysk wykonane są z metalu, gięte specjalnie . Profil – kąt 175x155mm, grubość metalu t=3mm;
- Rama podstawy i stropodachu są wyposażone jest w osprzęt montażowy wykonany ze stali o grubości t=4mm;
- Wszystkie elementy ramy pokryte są warstwą antykorozyjną;
- Wszystkie drewniane elementy ramy są poddawane -bio a przeciwpożarowej ochronie;
- Wszystkie elementy ramy są pomalowane emalią w dwóch warstwach, kolor: RAL7024 (szary grafit);
Podstawa modułu (podłoga):
- Oprawa podstawy zabezpieczona blachą ocynkowaną od dołu, grubość blachy – 0,5mm;
- Membrana hydroizolacyjna. Izolacja z welny mineralnej o grubości 100 mm;
- Membrana paroizolacyjna;
- Podłogi z płyt cementowo-wiórowych- (DSP) o grubości 20mm;
- Wykładzina z pół-komercyjnym linoleum (heterogenicznym), kolor – okruchy szare. Na obwodzie pomieszczeń – cokół PCV, kolor – szary;
Stropodach (sufit):
- Wodoodporna powłoka membrany PCV o grubości 1,2mm;
- Ruszt pełny z zorientowaną płytą wiórową (OSB-3) o grubości 12 mm;
- Izolacja z wełny mineralnej o grubości 150mm;
- Membrana paroizolacyjna;
- Krata z drewnianą deską 100x20mm (sosna);
- Blacha gładka 0,45mm, z powłoką polimerową RAL9003 (biały), naklejona na podłoże z płyty gipsowo-kartonowej odpornej na wilgoć 12,5mm;
Ściany zewnętrzne prefabrykowane, z płyt warstwowych:
- Strona zewnętrzna – blacha profilowana 0,45mm, z powłoką polimerową RAL7024 (szary grafit);
- Izolacja: welna mineralna 100mm;
- Wewnątrz -gładka blacha 0,45mm, z powłoką polimerową RAL9003 (biały);
Przegrody prefabrykowane z płyt warstwowych:
- Po obu stronach blacha gładka 0,45mm, z powłoką polimerową RAL9003 (biały);
- Izolacja: Wełna mineralna 80mm;
Obramowanie:
- Na zewnątrz: zakrzywione listwy z gładkiej blachy 0,45mm, z powłoką polimerową RAL7024 (szary grafit);
- Wewnętrz: zakrzywione listwy z gładkiej blachy 0,45mm, z powłoką polimerową RAL9003 (biały);
Plan :




