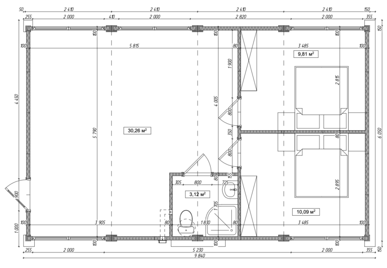
Charakterystyka :
- wymiary: 10,0x6m;
- wysokość sufitu: 2,5 m;
- ocieplenie: 100 – 150 mm;
- dekoracja ścian zewnętrznych: panele HPL i sztachet drewniany;
- okna i drzwi: PVC lub aluminiowe;
- ogrzewanie: elektryczne;
- łazienka z prysznicem
- klimatyzacja;
- zadaszenie;
- pojemność: 2 osoby dorosłe, 2 dzieci (lub 4 osoby dorosłe).
Plan :




