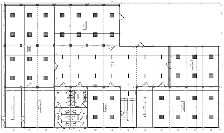
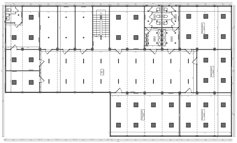
Charakterystyka :
- zajęcia szkoleniowe;
- Aula;
- kuchnia;
- jadalnia;
- zaplecze sanitarne;
- pokój nauczycielski;
- szafa;
- pomieszczenia techniczne i domowe;
- wymiary: 31,3×18,2m;
- wysokość sufitu: 2,5 m;
- powierzchnia całkowita budynku: 962,3m2;
- ocieplenie: 100 mm;
- wykończenie ścian zewnętrznych: panele HPL;
- okna i drzwi: aluminiowe;
- ogrzewanie: elektryczne;
- łazienki
- klimatyzacja;
- pojemność: do 120 dzieci.
Plan :




